Calculette
Partager
A VENDRE - TERRAIN CONSTRUCTIBLE A GRIMAUD
Description de l'offre
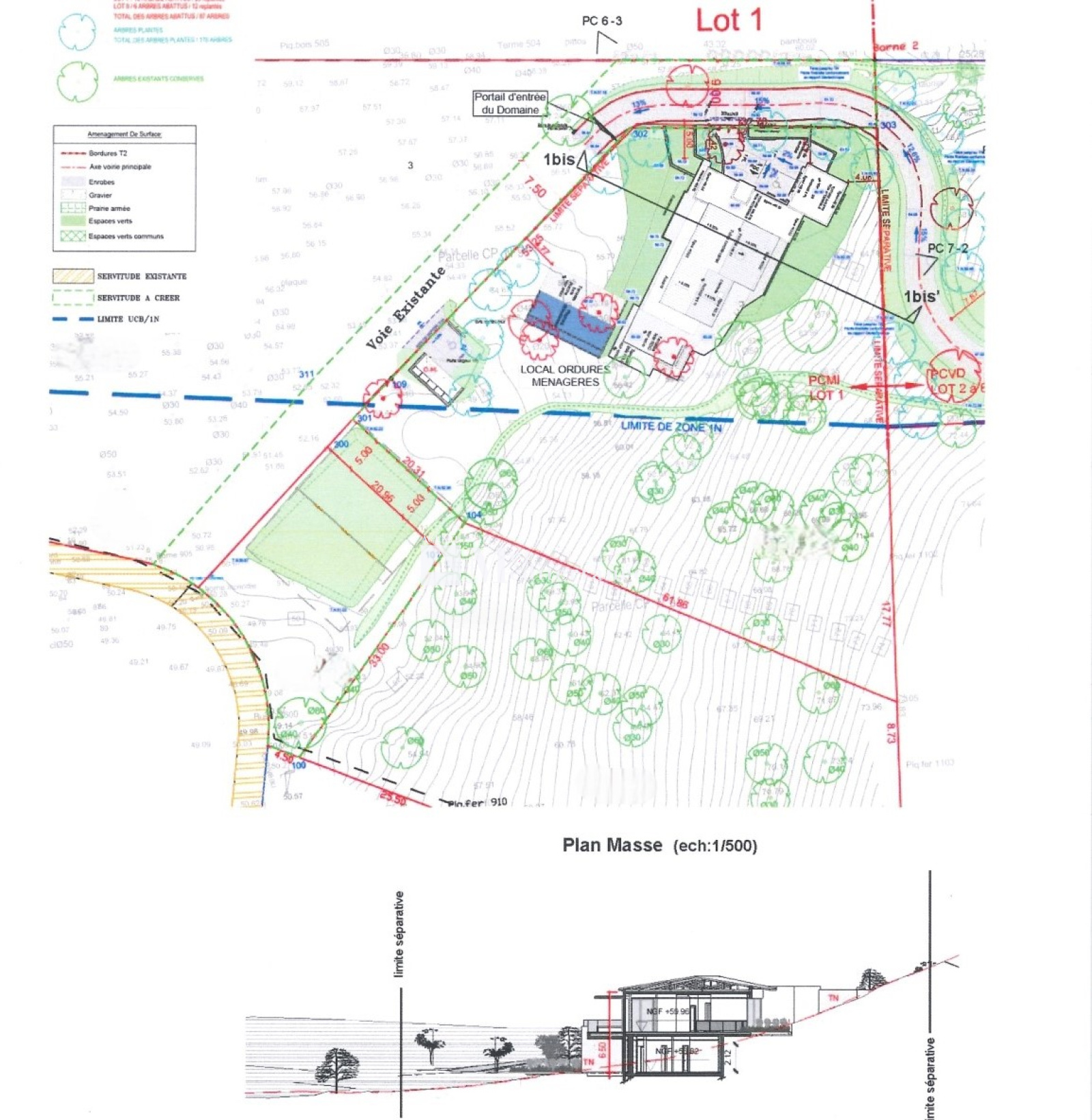
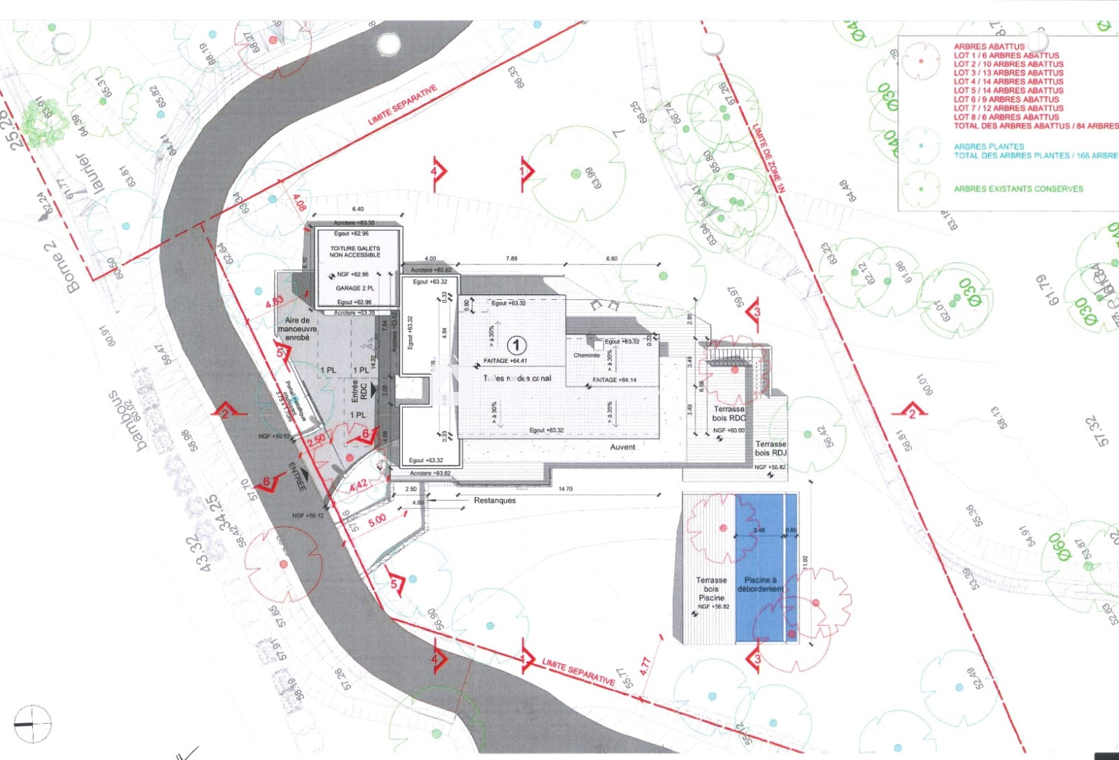
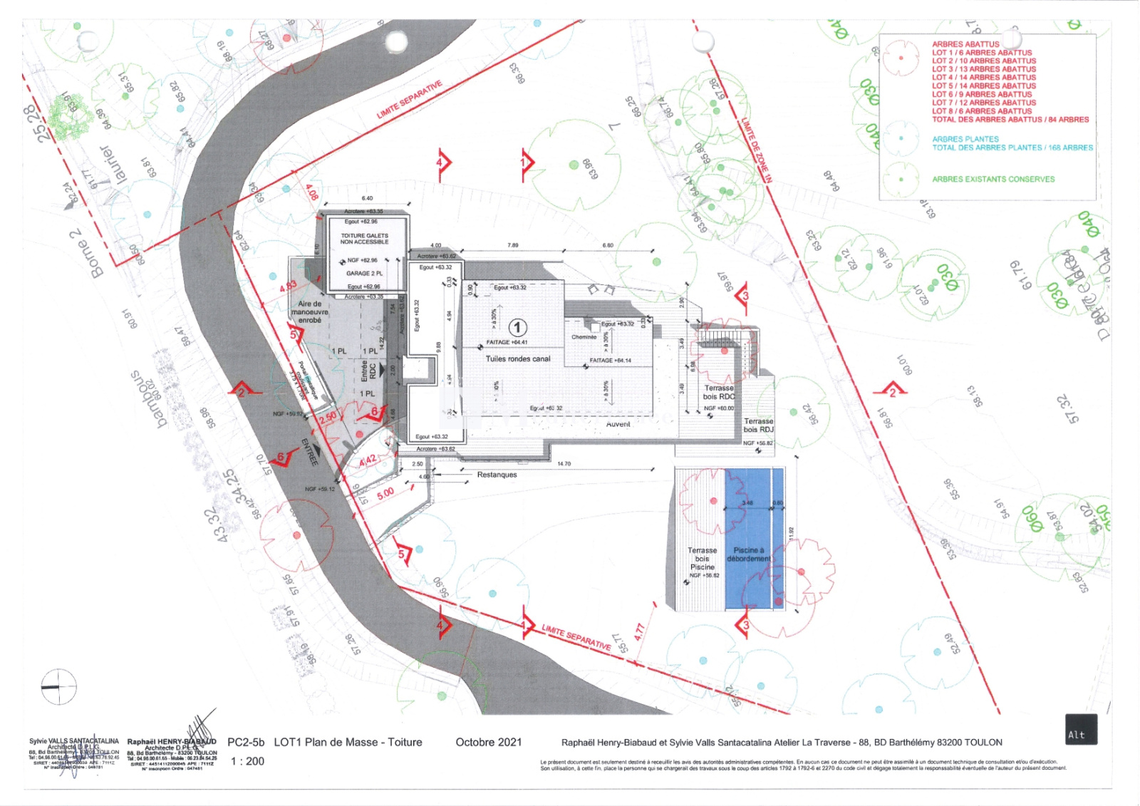
A VENDRE - TERRAIN A BATIR: Situé sur la commune de Grimaud, dans un cadre arboré, ce terrain viabilisé offre un emplacement idéal pour une future bâtisse. Il présente de nombreux atouts: une très grande surface de 6922m², une exposition idéale au Sud, un cadre campagne au calme avec tout de même la proximité des commerces et avec un permis de construire déjà accordé et purgé. Il prévoit une spacieuse villa sur deux niveaux: à l'étage (en rez-de-jardin) quatres suites et salles de bains privatives, une buanderie, un bar sur la terrasse en bois; au rez-de-chaussée un grand espace salon-salle à manger avec cuisine ouverte, un bureau, un cellier et un garage double. Ce bien est complété d'une piscine. La surface habitable de l'ensemble est de 314m², hors garages et terrasses. Les informations sur les risques auxquels ce bien est exposé sont disponibles sur le site Géorisques : www.georisques.gouv.fr.
Descriptif du bien
- Code postal : 83310
- surface terrain : 6 922 m²
- Vue : Dégagée
- Terrain constructible : OUI
- Surface constructible : 6922
- Exposition : SUD
- Terrain Viabilisé : OUI
- Copropriété : NON
- Prix de vente : 900 000 €
- Les honoraires d'agence seront intégralement à la charge du vendeur
La ville de Grimaud (83310)
Ce bien vous intéresse ?
Partager l'offre
Agence Mer Méditerranée
Port grimaud (83310)
Les informations recueillies sur ce formulaire sont enregistrées dans un fichier informatisé par La Boite Immo agissant comme Sous-traitant du traitement pour la gestion de la clientèle/prospects de l'Agence / du Réseau qui reste Responsable du Traitement de vos Données personnelles.
La base légale du traitement repose sur l'intérêt légitime de l'Agence / du Réseau.
Elles sont conservées jusqu'à demande de suppression et sont destinées à l'Agence / au Réseau.
Conformément à la loi « informatique et libertés », vous disposez des droits d’accès, de rectification, d’effacement, d’opposition, de limitation et de portabilité de vos données. Vous pouvez retirer votre consentement à tout moment en contactant directement l’Agence / Le Réseau.
Consultez le site https://cnil.fr/fr pour plus d’informations sur vos droits.
Si vous estimez, après avoir contacté l'Agence / le Réseau, que vos droits « Informatique et Libertés » ne sont pas respectés, vous pouvez adresser une réclamation à la CNIL.
Nous vous informons de l’existence de la liste d'opposition au démarchage téléphonique « Bloctel », sur laquelle vous pouvez vous inscrire ici : https://www.bloctel.gouv.fr
Dans le cadre de la protection des Données personnelles, nous vous invitons à ne pas inscrire de Données sensibles dans le champ de saisie libre.
Ce site est protégé par reCAPTCHA, les Politiques de Confidentialité et les Conditions d'Utilisation de Google s'appliquent.
